LOFT VIA BASSI - Milano (MI)
Reperimento area, progetto e D. L. per costruzione loft h 5m, ad uso galleria d'arte con soprastante abitazione



ISTITUTO PAVONIANO ARTIGIANELLI - Monza
Recupero e rifunzionalizzazione del complesso immobiliare ospitante la casa dello studente, la comunità alloggio, la residenza religiosa e il centro di aggregazione giovanile. Progetto e Direzione lavori.




HABITAT UNO - Monza
Reperimento area, Progetto, Direzione Lavori, Coordinamento in materia di sicurezza e di salute durante la progettazione e l'esecuzione, Catasto e Cementi Armati di complesso residenziale in classe A avente S.L.P. pari a 9.300 mq.








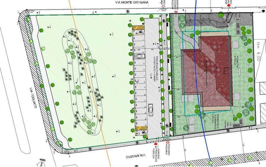
SANTA GIULIA - Rogoredo (MI)
Progettazione Esecutiva, Direzione Lavori e Coordinamento in materia di sicurezza e di salute durante la progettazione e l'esecuzione di 137 alloggi nell'ambito del P.I.I. Montecity-Rogoredo.
Alcune immagini sono tratte da www.milanosantagiulia.com





CASA LUNA - Monza (MB)


VICOLO DUOMO - Monza (MB)









INTESA REAL ESTATE - Monza (MB)
Recupero e rifunzionalizzazione edificio storico testimoniale. Progetto architettonico, Direzione Lavori, Arredi, Catasto per i piani 1 e 2. Pratica Paesistica per recupero del piano sottotetto ai sensi della L.R. 15 al piano 3.


SERCASA S.p.A. - Milano
Progetto di variante per la realizzazione di un complesso residenziale in Milano via Adriano (122 alloggi)

LEVIS - Cinisello B. (MI)
Reperimento area, piano di lottizzazione, permesso di costruire, cementi armati, strutture, direzione lavori e catasto di palazzina residenziale di 20 appartamenti e 20 boxes.


EUROMOTORS - Grezzago (MI)
Reperimento area, Piano di Lottizzazione, Permesso di Costruire, Direzione Lavori, Cementi Armati, Catasto e Progetto Arredi per capannone industriale (11.000 mq) con annessa palazzina uffici (4.000 mq)





HOLIDAY INN - Cinisello Balsamo
Reperimento area, Piano attuativo - OC/P 3.6 Progetto Architettonico, arredi di Albergo di 150 camere.


PARROCCHIA ED EDIFICIO TERESIANO - Trezzo (Mi)
Piano Particolareggiato e Progetto Esecutivo del nuovo centro parrocchiale SS Gervaso e Protaso oltre al recupero di Edificio Teresiano in ottemperanza ai vincoli della Sopraintendenza per i beni Architettonici e per il Paesaggio di Milano






FILCA - Cinisello Balsamo (Mi)
Reperimento area, Piano di Lottizzazione, Permesso di Costruire, Direzione Lavori, Coordinamento in materia di sicurezza e di salute durante la progettazione e l'esecuzione, Catasto e Cementi Armati di complesso residenziale costituito da 4 torri per n° 116 alloggi e relativi boxes.



G.D.R. - Cinisello Balsamo (Mi)
Assistenza all'acquisto dell'area e Progetto architettonico di complesso residenziale per 60 appartamenti e boxes e Piazza pubblica a verde e parcheggi.


FEDERAZIONE LOMBARDA DELLE BANCHE DI
CREDITO COOPERATIVO - Milano
Edificio per uffici - Direzione Lavori del fabbricato originario e progettazione e Direzione Lavori della sistemazione interna dal 1982 ad oggi.

CAV - Monza
Assistenza all'acquisto di miniappartamenti e pratiche amministrative/edilizie per attività di affitto di case-vacanze L.R. 45/89.

DAVIDE CAMPARI s.p.a. - Milano
Deposito - Direzione lavori

BURASCHI - Cinisello Balsamo (Mi)
Progetto, Direzione Lavori, Pratica Catastale di palazzina residenziale.

IMPRESA TROTTA - Cinisello Balsamo (Mi)
Progetto di edificio residenziale e boxes.

ISTITUTO MAZZARELLO - Cinisello Balsamo (Mi)
Progetto e Direzione Lavori di complesso scolastico di mc 150000 comprendente: scuola materna, elementare, media, Istituto Superiore d'Arte, casa delle religiose, mensa, palestra.
HOTEL NARDJESS - Algeri
Masterplan per hotel (500 camere) comprendente: planetario, ristorante, campo da golf, campo da tennis, anfiteatro, centro sportivo ricreativo, darsena, porto per imbarcazioni, centro ricreativo, darsena, porto per imbarcazioni, centro d'equitazione.

ASSICURAZIONI GENERALI - Cinisello Balsamo (Mi)
Edificio per uffici mc. 25000 Progetto, Direzione Lavori e catasto.

COOP. LA SPERANZA - Cinisello Balsamo (Mi)
Edificio residenziale.
OPERA PIA MARTINELLI - Cinisello Balsamo (Mi)
Casa di riposo per anziani 160 posti letto - mc 16000. Progetto e Direzione Lavori.
IMMOBILIARE SARDENA - Cinisello Balsamo (Mi)
Progetto, Direzione Lavori e Pratica Catastale di villette a schiera.

COOP. AUPREMA - Cinisello Balsamo (Mi)
Progetto, Direzione Lavori e Pratica Catastale di villette a schiera.

TELETTRA - Gongorzola (Mi)
Progetto, Direzione Lavori e Pratica Catastale di capannone industriale.
CASSA RURALE E ARTIGIANA - San Colombano al L.
(Mi)
Progetto, Direzione Lavori e Pratica Catastale
CASSA RURALE - Busto Garolfo (Mi)
COMPAGNIA INVESTIMENTI IMMOBILIARI - Milano
Direzione Lavori palazzo in Via Asiago - Milano - Residenza Naviglio Martesana.

NINE HOTEL - Monza
Progetto, Direzione Lavori, Coordinamento in materia di sicurezza e di salute durante la progettazione e l'esecuzione dei lavori, Cementi Armati, Catasto e Arredi nell'ambito del recupero di edificio Storico-Testimoniale in Monza e riutilizzo ad uso albergo e ristorante/bar (500 coperti).



